House of Tomorrow (Indiana)

House of Tomorrow
Interactive map of the house (marked in red) among the others in the district
Location214 Lake Front Dr., Beverly Shores, Indiana
Coordinates41°41′3″N 87°0′6″W / 41.68417°N 87.00167°W / 41.68417; -87.00167
Built1933
ArchitectGeorge Fred Keck[1]
Part ofBeverly Shores-Century of Progress Architectural District (ID86001472[2])
Added to NRHPJune 30, 1986

The House of Tomorrow is a historic building in the Century of Progress Architectural District in Beverly Shores, Indiana. The house was originally part of Chicago's 1933-34 Century of Progress Exposition. Designed as the house of the future, this house included its own airplane hangar. Glass walls offered views from every angle and so taxed the experimental air conditioning system that the cooling system failed.[3]

1933 Century of Progress Exposition

The House of Tomorrow was built for the Century of Progress' 1933 Homes of Tomorrow Exhibition in Chicago, Illinois. Architect George Fred Keck's design reflected European modernism. The design conveyed the ideals of the fair and its emphasis on science and technology.[4] Keck said he 'discovered' solar heating when he found workers inside the house wearing only shirtsleeves on a frigid winter day.[5][6]

Bartlett Development

After the close of the Century of Progress, the structure was sold to Robert Bartlett for $2,500. Bartlett was developing a resort community in Beverly Shores, Indiana. The house was placed on a barge and moved across Lake Michigan to Indiana. In April 1938, Bartlett sold the house to become a private residence.[7]

Design

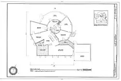
First floor plan of the House of Tomorrow, Beverly Shores, Indiana

The building is a three-story dodecagon, 42 feet in diameter. It was built using aluminum fascia with vermiculite interior walls. Plate glass walls are the most notable feature of the building. An airplane hangar was included, set four feet lower than the ground floor.[8] When the house was moved to Beverly Shores, the ground floor was modified to make use of the garage and airplane hangar for living space. A carport was added. Windows were modified so that the occupants could open and close them to control the internal environment.[9] The interior is designed around a central staircase in the dodecagonal prism structure. Most rooms are wedge shaped.

Keck's inspiration for the house came from an 1854 octagon house in his hometown of Watertown, Wisconsin.

Restoration efforts

The house during restoration, 2020

Restoration efforts on the House of Tomorrow House were started in 1997, with the Indiana Dunes National Lakeshore and Indiana Landmarks searching for potential lessees to restore the building.[10] As of 2011, the Park Service is once again looking for a long-term renter to complete the restoration of the property. The previous renter vacated the property after the restoration cost estimates exceeded previous budgeted amounts. The current restoration cost is estimated at $2 million. The restoration professionals were identified in March 2017.[11]

The House of Tomorrow was named a National Treasure[12] by the National Trust for Historic Preservation in October 2016.

In February 2019, the Indiana Landmarks group announced that it was looking for someone to restore the House of Tomorrow, which it estimated would cost about $3 million. If a qualified person does the restoration, they will be granted a 50-year lease on the house.[13]

In 2023, the House of Tomorrow received a $2 million grant from the Great American Outdoors Act, funded through the United States Department of the Interior.[14] This grant will fund the first phase of rehabilitation which is expected to begin in spring of 2024.[15]

See also

References

  1. ^ Roth, Leland M. American Architecture: A History, (Google Books), Westview Press, 2003, p. 361, (ISBN 0813336627)
  2. ^ "National Register Information System". National Register of Historic Places. National Park Service. March 13, 2009.
  3. ^ Cultural Sites of Indiana Dunes National Lakeshore; National Park Service, Indiana Dunes National Lakeshore; Porter, Indiana
  4. ^ House of Tomorrow, Beverly Shores-Century of Progress Architectural District; HABS No. IN-243-A; Historic American Buildings Survey, Department of the Interior; 1994, pg 2
  5. ^ "80 years". solarhousehistory.com.
  6. ^ Denzer, Anthony (2013). The Solar House: Pioneering Sustainable Design. Rizzoli. ISBN 978-0847840052. Archived from the original on July 26, 2013.
  7. ^ House of Tomorrow, Beverly Shores-Century of Progress Architectural District; HABS No. IN-243-A, pg 3
  8. ^ House of Tomorrow, Beverly Shores-Century of Progress Architectural District; HABS No. IN-243-A, pg 4
  9. ^ House of Tomorrow, Beverly Shores-Century of Progress Architectural District; HABS No. IN-243-A, pg 5
  10. ^ "Times"; Heather Augustyn; World's Fair homes in Beverly Shores being restored to former glory; August 6, 2007
  11. ^ "House of Tomorrow Restoration Team". solarhousehistory.com.
  12. ^ Kamin, Brian (October 18, 2016). "Preservation group seeks to assure future for House of Tomorrow". Chicago Tribune. Retrieved October 20, 2017.
  13. ^ Kamin, Blair (February 20, 2019). "Wanted: Someone with big bucks and a big heart to restore the legendary House of Tomorrow". Chicago Tribune. Retrieved February 22, 2019.
  14. ^ "Preserving the House of Tomorrow, A National Treasure | National Trust for Historic Preservation". savingplaces.org. February 20, 2019. Retrieved March 11, 2024.
  15. ^ "House of Tomorrow". Indiana Landmarks. Retrieved March 11, 2024.